O ubytovaní
Apartmán " ARZENŠEK " nachádza sa v letovisku Sv. Filip i Jakov - Turanj , Sv.Filip i Jakov, 50 m od mora a kapacita 6 osôb v 1 jednotka. Majiteľ hovorí: CZ, GER, ITA, ESP, HRV, POL.
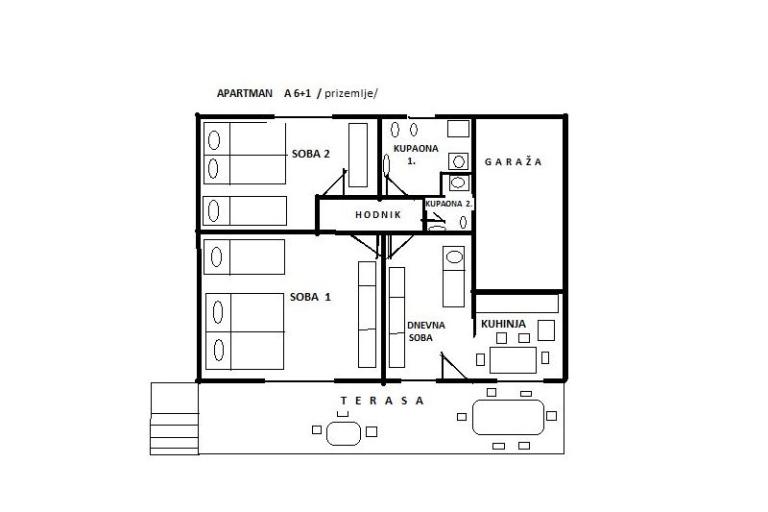
Apartmán "Arzenšek" (110m2), luxusní byt v letovisku Turanj / Sv. Filip a Jakov. Vzdálenost od moře jen 50 m ! Pro příchod na pláž nepřecházíte hlavní cestu. Pohodlný byt pro rodinnou dovolenou. Byt je komfortní, má 2 ložniceobývací pokoj pěkně zařízený, 2 luxusní koupelny, dobře vybavená kuchyň, jídelna, terasa s posezením, satelitní TV, wifi, rádio, klimatizace, gril, parkování ve dvoře, na všech oknech moskytiéry, upravená zahrada a dvůr, dětské hřiště a venkovní sprcha. Vlastní vchod. Na pláží lehátka a slunečníky pro naše hosty. Výborné také pro mimo sezónní rybolov. Možnost kotvení člun do 5 m. VÍTEJTE!!
